千级净化车间的应用较为广泛,在医院手术室、机械电子等行业的装修设计中洁常有使用小百姓网。千级洁净室指的是微尘数量被控制在每立方米1000个以内,同时为了防止洁净空间受外界污染,在室内压差上也有所要求,通常要求内部压力(静压)>外部压力(静压);洁净度要求高的空间压力>洁净度要求低的空间压力;洁净室门的朝向应开向洁净度级别高的房间。更多的千级净化车间装修设计标准和一般做法详见下文
一、千级净化车间的装修设计标准
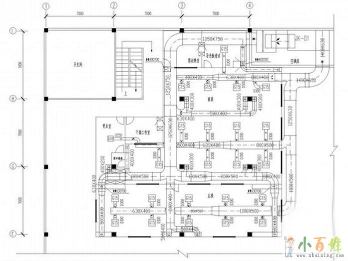
1. 千级净化车间的建筑通常划分为土建结构和装配式两种,其中装配式更为普遍,主要包括由初级、中级、高级空气过滤器构成的空调送回风系统、排风系统及其他配套系统Gvn。
2. 千级净化车间的室内空气参数设置要求:
⑴ 温湿度要求:温度一般为24+2℃,相对湿度为55+5%。
⑵ 新风量:非单向流洁净室总送风量的10-30%;补偿室内排风和保持室内正压值所需的新鲜空气量;保证室内每人每小时的新鲜空气量≥40m3/h来自www.xbaixing.com。
⑶ 送风量:要满足无尘车间内的洁净度及热湿平衡。
二、千级净化车间的一般做法
关于千级净化车间的一般做法,三仁将以电路板千级净化车间的三种设计方案来比较分析x b a i x i n g c o m。此处案例为苏州一个美资柔性电路板EPC总承包项目中的一个典型工艺房间,温湿度要求在(21±2)℃,湿度控制在(55±10)%。
1. 方案一:AHU(空调机组)+HEPA(高效送风口)
2. 方案二:MAU(新风机组)+RAU(循环机组)+HEPA(高效送风口)
3. 方案三:AHU(空调机组)+FFU(风机过滤单元)
对比三种方案发现三种方案造价差异不大,但方案三由于使用了大量循环风且只经过一次高效过滤,在运行能耗上相比方案一和方案二消耗更少www.xbaixing.com小百姓网。因此在市场上,千级净化车间随着FFU价格的降低,越来越受到设计师和建设方的喜爱。

梭织类服装的加工、针织类服装的加工、PV皮质类服装的加工定做、双面尼工艺等各类服装的加工

我们加工服装涵盖的特殊工艺也有很多,比如压摺、印花、水洗、绣花、烫画、激光切割等等很多类型;小批量服装加工的类型也有很多种类,比如双面呢大衣、针织服装、梭织服装、PU类服装、仿皮草、蕾丝、汉服、唐装、毛衣类、棒针毛衣、钩针毛衣等等各类服装加工服务,基本上涵盖了大部分类型。

上海市l83.5845.1714上海市抽化粪池污水池下水道清洗化粪池清理疏通车快速上门清理化粪池污水处理上海市市政管道清淤检测修复上海市污水处理清理检测修复下水道疏通上海市市政管道清淤检测修复上海市污

上海市大型高压清洗车疏通排水管道,清理排污管道,清理雨水管道,疏通市政管道,清洗高空管道,疏通道路管道,疏通下水道,清疏地下沟渠,清洗工业管道,管道疏通清淤等。

上海市183.5845.1714抽化粪池清洗车专业化粪池清理公司备有解放东风5吨抽车、130型抽车、1041型环卫车队,专门从事:污水井清理、化粪池清理(1#-10#)隔油池清理、地下室排污池清理等定

上海市l835845.1714抽化粪池清洗车专业化粪池清理公司备有解放东风5吨抽车、130型抽车、1041型环卫车队,专门从事:污水井清理、化粪池清理(1#-10#)隔油池清理、地下室排污池清理等定期

李姐回收冬虫夏草东阿阿胶微信号《138,1133,7577》冬虫夏草 九朝贡胶 5X极草含片,近期东阿阿胶,老阿胶 回收冬虫夏草 qq 59,388,9206 高价收购同仁堂总统牌70克90克礼盒燕窝,各种5A???6A级散装马来西亚燕窝。毛燕、燕条、燕碎、泰国洞燕。同仁堂虫草22.5克25克40克60克80克120克,专业回收山东东阿阿胶、北京同仁堂阿胶、福牌阿胶,价格面议。

常年经营回收长三角地区,各种机电设备,变压器回收,电缆线回收,中央空调回收,发电机回收,母线槽回收,手配电柜回收,电梯回收,锅炉回收,废旧金属物资回收,企业工程物资拆除回收等各种废旧物资。

上海市《登门全市区≥县≥乡镇≥街道≥回收冬虫夏草》V话号136≮991≯22221同号≤包装≥瓶≥盒≥罐≥袋≮兜等≯大小比如2条、3条、4条、5条等等条。同仁堂及其它品牌系列常见包装规格10克、12克

上海市183.5845.1714疏通环保工程有限公司管道检测工程施工,本公司备有大中小型机械,承接管道疏通、下水道疏通、疏通管道、高压清洗、高压水射流清洗、疏通下水道等各种疑难管道疏通、管道维修、高压

李姐回收冬虫夏草东阿阿胶微信号《138,1133,7577》冬虫夏草 九朝贡胶 5X极草含片,近期东阿阿胶,老阿胶 回收冬虫夏草 qq 59,388,9206 高价收购同仁堂总统牌70克90克礼盒燕窝,各种5A???6A级散装马来西亚燕窝。毛燕、燕条、燕碎、泰国洞燕。同仁堂虫草22.5克25克40克60克80克120克,专业回收山东东阿阿胶、北京同仁堂阿胶、福牌阿胶,价格面议。

上海市15270196658全城服务:上海市浦东区管道疏通清洗清淤清理服务快速上门检测修复报价。上海市浦东抽化粪池管道疏通清洗清淤清理检测修复报价。上海市奉贤区管道疏通清洗清淤清理服务快速上门检测修复

长宁区l5867263799抽隔油池公司长宁区抽隔油池抽化粪池清洗长宁区抽隔油池抽化粪池清理长宁区抽隔油池抽化粪池清淤长宁区抽隔油池抽化粪池疏通长宁区高压清洗污水池下水道疏通清洗清淤清理长宁区清理化粪

上海专业回收PDA手持终端PDA手持终端在各行业应用越来越广,原因就是体积小、重量轻、高性能,适合移动作业,它是将条码扫描装置与数据终端一体化,带有电池可离线操作的终端电脑设备。PDA手持终端具备实时

浦东专业回收数码产品,仪器仪表回收回收电脑:286、586、P3、P4、苹果机G4、G5、主机、显示器、主板、硬盘、CPU、内存、各种电脑散件回收笔记本:苹果、IBM、索尼、东芝、联想、清华同方、富士

上海56621126卡德维专业浴缸维修、冲浪浴缸维修、蒸汽淋浴房维修、装浴缸、维修浴缸、各种品牌的浴缸、和冲浪浴缸、专业修浴缸各种零件损坏、浴缸漏水等。为酒店、企业、家庭、公司服务。服务上海大众公司业

万家利电马桶 电马桶安装 电动马桶维修 电动化粪器维修万家利电马桶开关更换维修 机电盒更换

维修蒙娜丽莎浴缸,浴缸下水维修,浴缸漏水修理

专业维修各种淋浴房,包括:各种配件调换 滑轮,拉手,滑块,钢化玻璃,减震块,型材,铰链等。

奉贤新注册公司、个体户注意!我提供代账服务,包括记账报税、工商年报、税务筹划等,专业高效,让您省心又省力。


上海阿波罗浴缸维修浴缸转换阀漏水维修,浴缸漏水维修,浴缸龙头维修,浴缸下水塞维修更换,冲浪浴缸异味维修,浴缸不下水,浴缸下水塞损坏,冲浪浴缸气孔堵塞浴缸电脑板维修等维修浴缸,冲浪浴缸维修,维修浴缸电机...

长宁区阿波罗浴缸漏水维修上海上海安居卫浴维修服务公司水管明管暗管漏水维修淋浴房浴缸漏水维修021-56621126本公司主要服务:水管维修、铜水管焊接维修、PPR水管维修安装、管道疏通、下水道堵清理、...

翻新二手房,防水涂料,粉刷涂料,卫生间漏水修理,安装电马桶,电马桶安装,电马桶修理...

浴缸修理,浴缸修补,浴缸翻新,补浴缸,浴缸下水维修,浴缸漏水维修...

黄浦区老房翻新,卫生间改造,房屋装修...

工业厂房洁净工程、电子厂房洁净工程、化妆品厂房净化工程、光纤通讯厂房洁净工程、丝印厂房洁净工程、网印厂房洁净工程...

无尘室工程 无尘车间 净化工程...

上海泰杉装饰工程有限公司是一家提供完整的办公楼设计空间规划,工程管理,室内设计和施工的专业公司。...

上海专业门禁安装维修,木门门禁 ,玻璃门门禁,联网考勤门禁,一体机,多门门禁人脸指纹考勤机 人脸指纹识别门禁机承接工程,先施工后付款。免费上门看现场出方案,现场报价,当天施工安装。...

.我公司是一家专业从事一卡通产品(门禁、监控。考勤、收费、巡更系统) 小区安防系统(监控、周界报警、楼宇对讲、广播系统)销售、工程设计、施工、维护的科技 型公司.我们以合理的 价格,优质的施工及 服务换取客户对我们的信任。...